WYSZUKIWANIE

numer oferty


miejscowość lub dzielnica

ulica

cena
od   do 

powierzchnia
od   do 

liczba pokoi
od   do 

oferty specjalne


Łódzka Giełda Nieruchomości- Całość Prowizji Pokrywa Sprzedający!!!

 

Prowizja od Sprzedającego 1-3 % brutto w zależności od przedmiotu transakcji

 

12 lat na rynku Łódzkim

 


 

 

 


mieszkanie ( sprzedaż )

Dodaj do notesu Drukuj Pokaż mapę
 
Rodzaj oferty:mieszkanie ( sprzedaż )
Numer:9986/880/OMS
Lokalizacja:KUTNO
Ulica:Bukowa
Cena:545 000 PLN kalkulator
Cena za mkw.:9 059,18 PLN
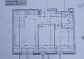
Powierzchnia60.16 mkw.
Liczba pokoi:3
Piętro:4
Liczba pięter:4
Rodzaj kuchni:aneks
Stan:idealny
Rok budowy:2024
Winda:TAK
 
Ofertę prezentuje:Adrian Lisiecki
Telefon:509711608
Email:biuro.zbywamy@wp.pl
Nr licencji pośrednika odpowiedzialnego:19596

Łódzka Giełda Nieruchomości
Piotrkowska 270 / 14 piętro
90-361 Łódź
tel.: 509711608
email: biuro.zbywamy@wp.pl

opis:

KUPUJ BEZPIECZNIE
OFERTA LICENCJONOWANEGO POŚREDNIKA TO GWARANCJA BEZPIECZNEJ TRANSAKCJI


OPIS NIERUCHOMOŚCI
Oferujemy do sprzedaży mieszkanie wykończone pod klucz o powierzchni 60.11 m2 położone w Kutnie przy ulicy Bukowej 18 .Budynek. wybudowany w 2024 roku. Nowoczesne bezpieczne osiedle z licznymi alejkami do spacerowania. Nowoczesna winda. Szybki dojazd do wschodniej obwodnicy Kutna i autostrady A1.

OPIS POMIESZCZEŃ

Mieszkanie składa się z trzech pokoi - przestronnego salonu z aneksem kuchennym, sypialni, dodatkowego pokoju, łazienki oraz korytarza i wykończone jest wysokiej jakości materiałami.

Wszystkie sprzęty RTV/AGD są nowe i nie były wcześniej użytkowane, posiadają gwarancję.

Salon wyposażony jest w stół i 4 krzesła, wygodną kanapę i szafkę RTV z otworem dla kabli.

Zabudowy aneksu kuchennego składają się z okapu podszafkowego, zmywarki, płyty indukcyjnej, piekarniku oraz lodówki.

Sypialnia jest wyposażona w duże łóżko z oświetleniem LED i wielka szafa.

Do mieszkania przynależy duży taras 5.4M

Indywidualne miejsce parkingowe płatne dodatkowo 20 000 zł. ( brak możliwości kupienia mieszkania bez miejsca postojowego).

Dodatkowo wspólne pomieszczenie do przechowywania rowerów.

Wolne od zraz

Forma własności lokal stanowiący odrębną nieruchomość ( bez obciążeń)

brak komórki

Pomagamy w sprawnym otrzymaniu kredytu hipotecznego

Kontakt

Adrian Lisiecki
pośrednik w obrocie nieruchomościami
licencja nr 19596
tel 509-711-608
biuro.zbywamy@wp.pl


www.zbywamy.pl

UWAGA Powyższe dane mają charakter wyłącznie informacyjny i mogą odbiegać od stanu faktycznego. Nie stanowią oferty w rozumieniu przepisy Kodeksu Cywilnego. Opis obiektu został sporządzony na podstawie informacji przekazanych przez Oferującego. Oferta może być już nieaktualna.
Prosimy o telefon






Prześlij na email
Dane na temat wyświetlonej oferty można przesłać na wskazany adres poczty elektronicznej. W tym celu należy wpisać własny adres e-mail i zatwierdzić przyciskiem "WYŚLIJ".
 
E-mail

Zadaj pytanie dotyczące oferty

Imię i Nazwisko 
Telefon 
E-mail 
Treść zapytania 

Wyrażam zgodę na przetwarzanie moich danych osobowych przez firmę Łódzka Giełda Nieruchomości dla celów związanych z działalnością pośrednictwa w obrocie nieruchomościami, jednocześnie potwierdzam, iż zostałem poinformowany o tym, iż będę posiadać dostęp do treści swoich danych do ich edycji lub usunięcia.




© 2026 Łódzka Giełda Nieruchomości. Wszystkie prawa zastrzeżone.
asaricrm.com - programy dla agencji nieruchomości
Polityka ochrony danych osobowych biura Łódzka Giełda Nieruchomości Adrian Lisiecki 1. RODO RODO (ang.GDPR) to inaczej rozporządzenie Parlamentu Europejskiego i Rady(UE) 2016/679 z dnia 27 kwietnia 2016r. W sprawie ochrony osób fizycznych w związku z przetwarzaniem danych osobowych i w sprawie swobodnego przepływu takich danych. Nowe przepisy są stosowane od 25 maja 2018 r. 2. PRZETWARZANIE DANYCH a) Administrator - Administratorem Twoich danych osobowych jest Łódzka Giełda Nieruchomości Adrian Lisiecki z siedzibą w Łodzi przy ulicy Piotrkowskiej 270 / 14 p. To oznacza, że odpowiadamy za ich wykorzystanie w sposób bezpieczny, zgodny z umową pośrednictwa oraz obowiązującymi przepisami. - Nie powołaliśmy inspektora ochrony danych, ale w razie potrzeby, w tematach związanych z przetwarzaniem danych osobowych możesz się z nami skontaktować pod adresem e-mail: biuro.zbywamy@wp.pl. b) Jakie dane przetwarzamy Dane zbieramy i przetwarzamy tylko w zakresie niezbędnym do realizacji celów, dla jakich zostały zebrane, wynikających z przepisów prawa. Zakres danych będzie różny w zależności od tego, czy dane będą przetwarzane, w wykonaniu umów współpracy, umów dotyczących publikacji reklam oraz ofert nieruchomości. c) Cel wykorzystywania danych zawarcie i wykonanie łączącej nas umowy pośrednictwa, wykonanie ciążących na nas obowiązków prawnych, wykrywanie nadużyć i zapobieganie im, marketing bezpośredni, tworzenie zestawień, analiz, statystyk, wsparcie obsługi. d) Kategorie danych W szczególności przetwarzamy dane osobowe: klientów korzystających z usług publikacji reklam i ofert nieruchomości, pracowników i współpracowników wykonujących działania na rzecz Administratora Danych, osób związanych z nami umowami pośrednictwa, e) Sprzeciw Zgodnie z przepisami możesz w dowolnym momencie wnieść sprzeciw: wobec przetwarzania dotyczących Cię danych (w tym profilowania) na potrzeby marketingu bezpośredniego, wobec przetwarzania przez nas Twoich danych osobowych (w tym profilowania), jeśli podstawą wykorzystania danych jest nasz prawnie uzasadniony interes.  f)Uprawnienia Prawo do sprostowania ? korzystając tego prawa możesz zgłosić do nas konieczność poprawienia niepoprawnych danych lub uzupełnienia danych wynikających z błędu przy zbieraniu, czy przetwarzaniu danych; Prawo do usunięcia danych (prawo do zapomnienia) ? korzystając z tego prawa możesz złożyć wniosek o usunięcie danych. W przypadku zasadności wniosku dokonamy niezwłocznego usunięcia danych; Prawo do ograniczenia przetwarzania ? korzystając z tego prawa możesz złożyć wniosek o ograniczenie przetwarzania danych, np. kwestionujesz prawidłowość przetwarzanych danych. W przypadku zasadności wniosku możemy dane jedynie przechowywać. Odblokowanie przetwarzania może odbyć się po ustaniu przesłanek uzasadniających ograniczenie przetwarzania. Przepisy dopuszczają naliczanie opłat oraz proces windykacji (jeżeli jest to zasadne) mimo jednoczesnej realizacji prawa do ograniczenia przetwarzania danych. Prawo dostępu do danych ? korzystając z tego prawa masz możliwość pozyskania informacji, jakie dane, w jaki sposób i w jakim celu przetwarzamy. Prawo przeniesienia danych ? korzystając z tego prawa masz możliwość przeniesienia przez nas danych bezpośrednio do innego administratora, jak również otrzymania kopii danych w strukturyzowanym formacie, nadającym się do odczytu maszynowego, w taki sposób, żebyś mógł samodzielnie przenieść dane do innego administratora. g)Zgoda Jeśli udzielisz nam zgody na wykorzystanie danych, możesz ją w każdej chwili wycofać (nie będzie to wpływać na zgodność z prawem wykorzystania Twoich danych przed cofnięciem takiej zgody).  h) Okres przechowywania danych osobowych 1. Przechowujemy Twoje dane osobowe przez czas obowiązywania umowy zawartej z nami, a także po jej zakończeniu w celach: wykonania obowiązków wynikających z przepisów prawa, w tym w szczególności podatkowych i rachunkowych, zapobiegania nadużyciom i oszustwom, statystycznych i archiwizacyjnych, 2. Przechowujemy Twoje dane osobowe do momentu wycofania przez Ciebie zgody na przetwarzanie danych osobowych lub wniesienia przez Ciebie sprzeciwu wobec takiego przetwarzania. 3. Przechowujemy Twoje dane osobowe przez okres 3 miesięcy od prezentacji lokalu i)Przekazywanie dane do państw spoza Europejskiego Obszaru Gospodarczego Nie planujemy przekazywać Twoich danych poza EOG (obejmujący Unię Europejską, Norwegię, Liechtenstein i Islandię).  j)Automatyczne przetwarzanie danych osobowych (w tym poprzez profilowanie) Nie planujemy przetwarzania Twoich danych w sposób zautomatyzowany (w tym w formie profilowania).   3. Pouczenie Klienci biura Łódzka Giełda Nieruchomości Adrian Lisiecki mają prawo wniesienia skargi do Organu nadzoru gdy uznają, że przetwarzanie danych osobowych narusza przepisy RODO.